公示公告公开招采 公告详情

四川九河电力股份有限公司光伏储能备用高低压电气设备市场摸底公告

发布时间:2024.05.17

    我公司结合未来业务发展,拟预购一批高低压电气设备,现对市场进行一次摸底,请有意愿供应商联系我公司进行初步报价,有关事宜告知如下:

    一、采购清单


 


    注:1.最终需求数量以实际用量为准。
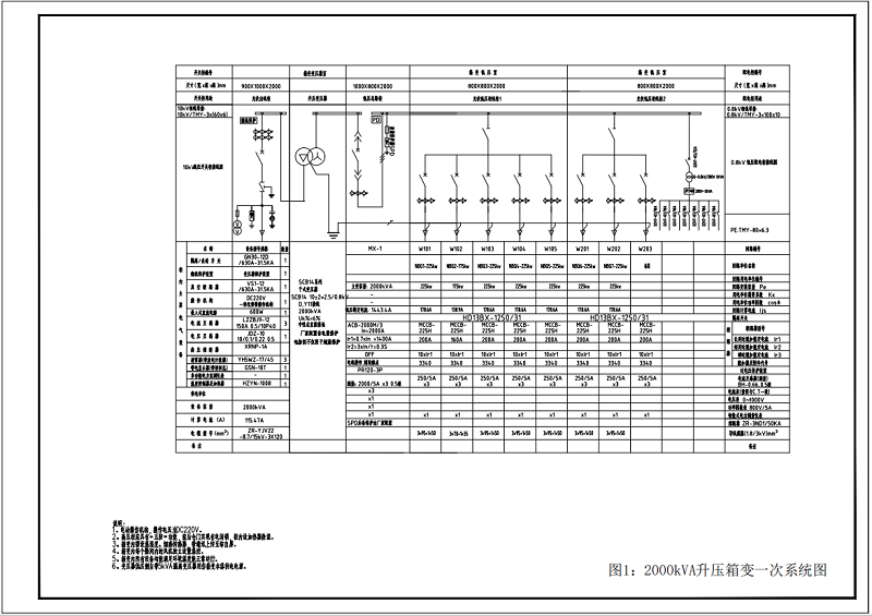
  2.具体配置详见相关图纸。


             3.报价含运费、含税(13%增值税专票)


    二、报价须知

    (一)提供供应商营业执照,报价以上面清单为准,须加盖公章。同时提供联系邮箱、联系人及联系方式电话。

    (二)报价发送至邮箱 2072132581@qq.com,邮件注明“高低压设备报价”,截止时间2024年05月22日16时00分(北京时间)。        

    三、其他说明

    (一)付款方式

    1.第一次付款

    签订合同后7日个工作日内,采购人支付本合同含税总价的30%。

    2.第二次付款

    全部合同货物到场签收后,供应商凭合同全额的增值税专用发票办理款项支付,采购人在审核手续无误后7个工作日内支付至合同含税总价款的70%。

    3.第三次付款

    全部合同货物在现场完成安装、调试、性能试验后,供应商凭合同全额的增值税专用发票办理款项支付,采购人在审核手续无误后7个工作日内支付至合同含税总价款的97%。

    4.第四次付款

    全部合同货物质保期到期后,无索赔或索赔完成后,供应商凭支付申请书办理质保金支付,采购人在审核无误后7个工作日内支付合同含税总价的剩余3%,即质量保证金。至此,该合同款项全部支付完毕。

    (二)交货时间

     合同签订后,30天内供货交货地点(四川省宜宾市)。

(三)技术要求

    1.满足以下(但不限于)标准:

    (1)《低压配电设计规范》(GB50054-2011)

    (2)《光伏系统并网技术要求》(GB/T19939-2005)

    (3)《光伏(PV)发电系统过电压保护导则》(SJ/T11127-1997)

    (4)《光伏发电系统逆变器安全要求》IEC62109-1-2010

    (5)《光伏发电工程验收规范》GB/T50796-2012

    (6)《低压成套开关设备和控制设备》(GB7251-2023)

    (7)《盘、柜及二次回路接线施工及验收规范》(GB50171-2012)

    (8)《建筑物防雷设计规范》(GB50057-2010)

    2.升压箱变应符合国家相关标准和规范要求,具备良好的机械强度和防护等级,能够满足正常运行和安全使用的要求。

    3.开关柜及其配件应符合国家及行业标准,具有合格证明文件。开关柜应具有可靠的“五防”功能,制造工艺、材料选用、检验方法等应符合相关标准要求,并进行质量检验和验收。

    4.随货提供铭牌、合格证等相关资料。

    四、联系方式

    邮  箱:2072132581@qq.com

    联系电话:0831-7807158

 

 

四川九河电力股份有限公司

                                        2024年05月16日